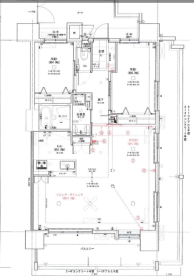
沖縄県沖縄市の収益物件,事業用物件一覧
※利回りとは、当該不動産の1年間の予定賃料収入の不動産取得対価に対する割合であり、公租公課その他当該物件を維持するために必要な費用の控除前のものです。また、予定賃料収入が確実に得られる事を保証するものではありません。
※利回り、想定年収に関する詳しい内容は、直接店舗までお問合せ下さい。
※利回りとは、当該不動産の1年間の予定賃料収入の不動産取得対価に対する割合であり、公租公課その他当該物件を維持するために必要な費用の控除前のものです。また、予定賃料収入が確実に得られる事を保証するものではありません。
※利回り、想定年収に関する詳しい内容は、直接店舗までお問合せ下さい。

